Casa Foggia

Annunci immobiliari appartamenti in vendita e affitto

  • Home
  • Chi siamo
  • Servizi
  • Richiesta immobili
  • Vendi immobile
  • Contatti
+390881617004
Casa Foggia

Annunci immobiliari appartamenti in vendita e affitto

  • Home
  • Chi siamo
  • Servizi
  • Richiesta immobili
  • Vendi immobile
  • Contatti
+390881617004
Appartamento – MACCHIA GIALLA- TRIBUNALE
  • Home
  • FOGGIA
  • MACCHIA GIALLA- TRIBUNALE

Appartamento – MACCHIA GIALLA- TRIBUNALE

MACCHIA GIALLA- TRIBUNALE - FOGGIA

Vendita

€260.000

  • F_191543
  • F_755864
  • F_802969
  • F_850074
  • F_897179
  • F_944284
  • F_178789
  • F_225894
  • F_643897
  • F_251479
  • F_759060
  • F_528734
  • F_136316
  • F_450407
  • F_355513
  • F_493524
  • F_540628
  • F_204951
  • F_252056
  • F_299161
  • F_346265
  • F_393370
  • F_957692
Appartamento – MACCHIA GIALLA- TRIBUNALE

ID Immobile :

 DANIMARCA_

Aggiunto ai preferiti

Aggiungi ai preferiti

Stampa

Vani
4
Bagni
2
Box (Mq)
22
Metri quadri
150 Mq

Descrizione

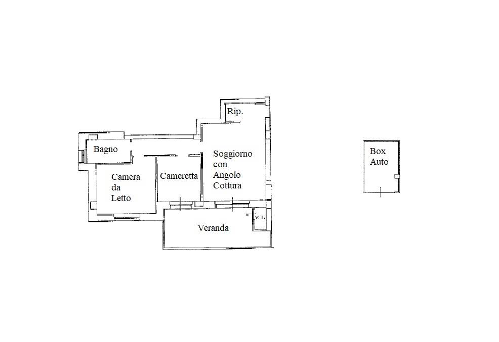
PER MAGGIORI INFORMAZIONI CONTATTATECI SU WHATSAP AL 0881617004 Via Danimarca in stabile signorile, all’interno di cortile condominiale recintato, disponiamo di un comodo quattro vani con doppi servizi e box. L’appartamento è composto da ingresso, comodo salone , ampia cucina abitabile con dispensa/lavanderia, tre camere da letto, di cui uno con bagno in camera. Con l’attuale disposizione la terza camera da letto è stata eliminata dando spazio alla zona giorno (per ripristinare la terza camera da letto è sufficiente alzare un semplice muro). Tripla esposizione. Controsoffittature. Parquè e marmo in travertino nella zona dell’angolo cottura. L’appartamento ha due comodi soppalchi e tre comodi balconi. Completa la soluzione un comodo box di 22 mq leggermente seminterrato. Libero maggio 2026

Informazioni aggiuntive

> Piano: 3 di 5
> Condizioni: Ottime
> Spese condominiali: € 60

Caratteristiche

  • Aria condizionata: No
  • Arredato: No
  • Ascensore: Si
  • Balcone: No
  • Box: Si
  • Cantina: No
  • Giardino: No
  • Mansarda: No
  • Posto auto: No
  • Riscaldamento: Autonomo
  • Terrazza: No

Video

Mappa

Prestazione energetica

  • Classe energetica: G
  • Prestazioni energetiche: kwh/m2 anno
  • A+
  • A
  • B
  • C
  • D
  • E
  • F
  • G

Omnibus Immobiliare

Ufficio:  0881 617004

Email:  richieste@casafoggia.net

Immobili correlati

Visualizza immobile

Appartamento – CENTRO

PER MAGGIORI INFORMAZIONI CONTATTATECI SU WHATSAP AL 0881617004 Via Urbano,…

Vani
1
Bagni
1
Metri quadri
41 Mq
Vendita

€40.000

Visualizza immobile

Locale commerciale – CENTRO

Via Capozzi 38, nelle immediate vicinanze di Via Vittimi Civili…

Vani
2
Bagni
1
Metri quadri
46 Mq
Vendita

€40.000

Visualizza immobile

Appartamento – IMMACOLATA – MICHELANGELO

PER MAGGIORI INFORMAZIONI CONTATTATECI SU WHATSAP AL 0881617004 Centrale –…

Vani
5
Bagni
2
Metri quadri
188 Mq
Vendita

€145.000

Visualizza immobile

Capannone industriale – SALICE – EXTRA URBANE

Zona Industriale. Possibilità anche di fitto o di Rent to…

Metri quadri
1250 Mq
Vendita

€750.000

Tipologia Immobili

  • Appartamento
  • Appartamento indipendente
  • Attico
  • Attività commerciale
  • Cantina
  • Capannone industriale
  • Garage / Posto auto
  • Locale commerciale
  • Magazzino
  • Masseria
  • Stanza/Camera
  • Terreno agricolo
  • Ufficio
  • Villa
  • Villa a schiera
  • Villa bifamiliare
Casa Foggia
  • Home
  • Chi siamo
  • Servizi
  • Richiesta immobili
  • Contatti
  • Vendi il tuo immobile
  • Privacy Policy
  • Cookie policy

I nostri contatti

C.so Giannone, 184 - 71121 Foggia

0881 617004

richieste@omnibusimmobiliare.it

© Omnibus Immobiliare Srl. Tutti i diritti riservati. Partita IVA 03498110711

Powered by Netplanet

Casa Foggia
  • Login
Forget Password?

Sul nostro sito utilizziamo i cookie per migliorare la navigazione e la raccolta dei dati statistici. Cliccando su “Accetta” acconsenti all'uso di tutti i cookie.
ImpostazioniAccettaCookie policy
Cookie policy

Cookie

Questo sito utilizza i cookie per migliorare la navigazione nel sito. Di questi, i cookie classificati come necessari vengono memorizzati nel browser in quanto sono essenziali per il funzionamento delle funzionalità di base del sito web. Utilizziamo anche cookie di terze parti che ci aiutano ad analizzare e capire come utilizzi questo sito web. Questi cookie verranno memorizzati nel tuo browser solo con il tuo consenso, con la possibilità di disattivarli. Tuttavia, la disattivazione di alcuni di questi cookie potrebbe influire sulla tua navigazione.
Funzionale
Sempre abilitato
Statistiche
Marketing
ACCETTA E SALVA